Discover this modern one-bedroom apartment in the highly sought-after College Gardens development. Featuring a south-facing 'treehouse' balcony, gated parking, and a private storeroom, this property offers an ideal first home with no onward chain.
Broadlands is delighted to present this exceptional one-bedroom apartment, situated within the prestigious and highly desirable College Gardens development at Inglis House, La Pouquelaye. This property represents a fantastic opportunity for first-time buyers and those seeking a modern, low-maintenance home in a prime location.
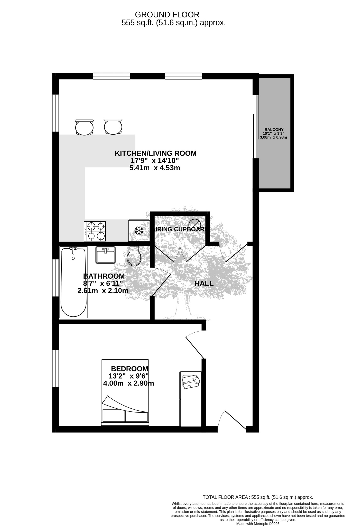
Upon entering, you are greeted by a contemporary living space that immediately impresses with its bright and airy ambiance. The apartment benefits from a unique south-facing corner outlook, drawing in an abundance of natural light from the East, South, and West throughout the entire day. This ensures a consistently warm, light and inviting atmosphere, enhancing the overall living experience.
The heart of this home is its well-proportioned reception room, seamlessly connecting to a modern, fully fitted kitchen. The design maximises both functionality and style, making it perfect for everyday living and entertaining. One of the standout features is the private, south-facing balcony, which offers a delightful 'treehouse' feel, providing a tranquil outdoor space to relax and enjoy the views over the excellently maintained communal gardens.
The apartment comprises a comfortable double bedroom, offering a peaceful retreat, a large utility cupboard in hall with washer dryer, and a stylish, contemporary bathroom. Every detail has been considered to provide a high standard of living.
Further enhancing the appeal of this property are the practical amenities it offers. Residents benefit from gated, designated parking for one vehicle, along with additional visitor parking, ensuring convenience and security. A good-sized private, lockable external storeroom measuring 2.6m x 1.4m provides invaluable extra space for bicycles, tools, or seasonal items, a highly sought-after feature in apartment living.
College Gardens is renowned for its beautifully landscaped communal gardens, which provide a serene environment for residents. The development also boasts an on-site gym, offering excellent facilities for health and fitness enthusiasts right on your doorstep. The meticulous upkeep of these communal areas reflects the high quality of life offered within this community.
This property is truly a perfect first home, combining modern living with practical features and an enviable location. With no onward chain.
Services
All mains. Electric wall radiators throughout. Utility hall cupboard with washer dryer. Service charges £800 quarter. Carpark is number 113 outside the front door.