Chat with us, powered by LiveChat

La Chasse

£7,500,000
Ref 488225
St. Saviour
Freehold
5 bedrooms
3 bathrooms
4 receptions
Garage
KEY FEATURES
  • Stunning, traditional granite home
  • Rebuilt throughout to the highest standards
  • 5 Bedrooms, 4 bathrooms
  • 4 Reception rooms including an eat-in kitchen and outstanding orangery
  • Pool house, gym and garaging
  • Private south facing garden with pool and surrounding fields
  • Gated entrance
  • Call Harry on 07797 751557 or harry@broadlandsjersey.com
This five-bedroom granite property has been lovingly refurbished by the DiCasa team to deliver a space of functionality and luxury.

This five-bedroom granite property has been lovingly refurbished by the DiCasa team to deliver a space of functionality and luxury.

Featuring a separate annex that accommodates a guest bedroom and gym that leads out onto an outdoor pool and terrace, with views across it's 7 acres of countryside. 

This former farmhouse can be found a few hundred meters from one of Jersey's top preparatory schools - St Michaels, in the parish of St Saviour. It's a truly rare opportunity to purchase a refurbished farmhouse with such character in such a desirable location. The gated entrance opens to a stone driveway with turning circle and parking for four cars, with a garage to the rear of the house.

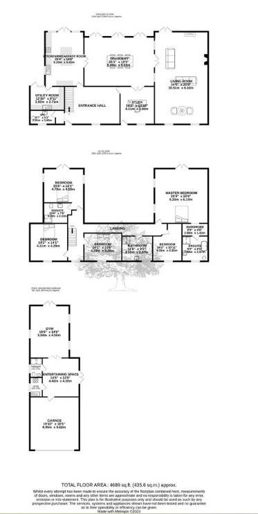
The house extends to approximately 4689 sq. ft along with a stunning standalone annex containing a gym, shower room, toilet, and a kitchenette with a grand entertaining space. The house has been beautifully renovated throughout using the signature DiCasa colour palette and contemporary aesthetic.

Living
The DiCasa team have spared no expense on this renovation starting from the quaint hallway and cloakroom on the ground floor, through to the brand-new home office, magnificent orangery and drawing room. The gorgeous drawing room has an impressive original stone fireplace and the orangery doubles as an elegant formal dining room with French doors leading out to the rear terrace.

The limestone floor across the orangery gives a distinguished feel, with a grand dining table and rustic armoire. The layout has made the most of the room's height and light, with the floor to ceiling windows and doors. The orangery is serviced by an adjoining kitchen/breakfast room, which is ideally suited for modern living with an attractive, well-appointed kitchen area with a Lacanche French range, with its signature shade of porcelain enamel, delicately crafted and presenting such a distinguishing feature to this kitchen.

Sleeping
On the first floor, there are five generous double bedrooms, including a master en-suite bathroom with a free-standing bath and separate shower. The other three bedrooms are serviced by en-suite bathrooms and the fifth bedroom is serviced by a luxury family bathroom. All of the bathrooms are brand new and boast designer décor and luxury sanitary ware using only the finest of materials.

Each bedroom in this stunning turnkey properly complements each other, with silk carpets throughout the 1st floor to make for a luxurious finish to the nude colour palette. The bedrooms have wardrobes, armchairs, and accessories you would expect to find having been styled by first class interior experts. The master bedroom and other rear bedroom have Juliet balconies, allowing for that wonderful morning sun to stream into your bed.

Pool House
La Chasse boasts a wonderful, heated pool, with electric cover and terrace, with expansive views across the fields and gardens which extend to some 7 acres. To compliment this there is a large pool house complete with kitchenette, changing facilities and space to entertain.

Services
Oil fired central heating for the main house and pool. All ground floor rooms have wet underfloor heating. First floor Radiators and electric underfloor heating in the bathrooms. Electric underfloor heating for the pool house. Fibre broadland installed. Sky installed.

Garden
The formal gardens are to the rear of the home and are immaculately presented with beautiful buxus trees and large entertaining terrace. La Chasse and gardens mainly face south, providing a wonderful suntrap throughout the day and most importantly the property provides a great deal of privacy.

Parking - Garage
Excellent garage space with electric doors and access to the pool house.

Parking - Off street
Extensive parking to the front of the property.

KEY FEATURES
  • Stunning, traditional granite home
  • Rebuilt throughout to the highest standards
  • 5 Bedrooms, 4 bathrooms
  • 4 Reception rooms including an eat-in kitchen and outstanding orangery
  • Pool house, gym and garaging
  • Private south facing garden with pool and surrounding fields
  • Gated entrance
  • Call Harry on 07797 751557 or harry@broadlandsjersey.com
Documents Floorplan Brochure
Viewing
Please contact us on 01534 880 770 if you wish to arrange a viewing appointment for this property, or require further information.
Disclaimer
Broadlands endeavour to maintain accurate depictions of properties in Virtual Tours, Floor Plans and descriptions, however, these are intended only as a guide and purchasers must satisfy themselves by personal inspection.
3601La Chasse
Interested? Let’s talk

Harry Trower

Director

Request a valuation

Learn what your home is worth

Start the selling process with an honest valuation.
The first step to selling is an accurate assessment of your home’s value.

Please fill out and return this form, and we will be in touch within one working day with a knowledgeable and honest valuation. We will also include our recommendations for your next steps in the selling process and how we can guide you so you can move forward with knowledge and confidence.

By submitting this form, you agree that we may contact you using the details you have provided.

Register your Interest

For more details & the required auction pack, contact us.

By submitting this form, you agree that we may contact you using the details you have provided.