Chat with us, powered by LiveChat
Under Offer

Northdale

£995,000
Ref 490502
St. Lawrence
Freehold
4 bedrooms
2 bathrooms
3 receptions
Drive
KEY FEATURES
  • Beautiful four bedroom family home
  • Stunning views from the primary bedroom and South facing balcony across St Aubins Bay
  • Garage for storage and 3 parking spaces on the driveway
  • Fully enclosed West facing garden with lawn and patio spaces
  • Three versitile reception spaces
  • New block work driveway
  • On a quiet residential road in a sought after position
  • Close to the 15 bus route and other local amenities
  • Sole agent
  • Call James on 07829835076 or james@broadlandsjersey.com
In a sought-after position on Rue de Haut in St Lawrence this beautiful 4-bedroom semi-detached house offers the perfect family home.

The property boasts stunning views from the primary bedroom across St Aubins Bay and is light and bright throughout

Recently decorated, the current owners have sympathetically modernised and improved the property over the years ready for the next family to move straight in. The house features three versatile reception spaces and a modern kitchen.

Outside, the property offers ample space for outdoor enjoyment. The front of the house features a generous patio and lawn area, ideal for al-fresco dining and entertaining.
There is also a garage for storage and three parking spaces on the driveway.

Located on a quiet residential road, this property is conveniently close to the 15 bus route and multiple other school bus stops. The school catchment is for the popular new Les Quennevais.


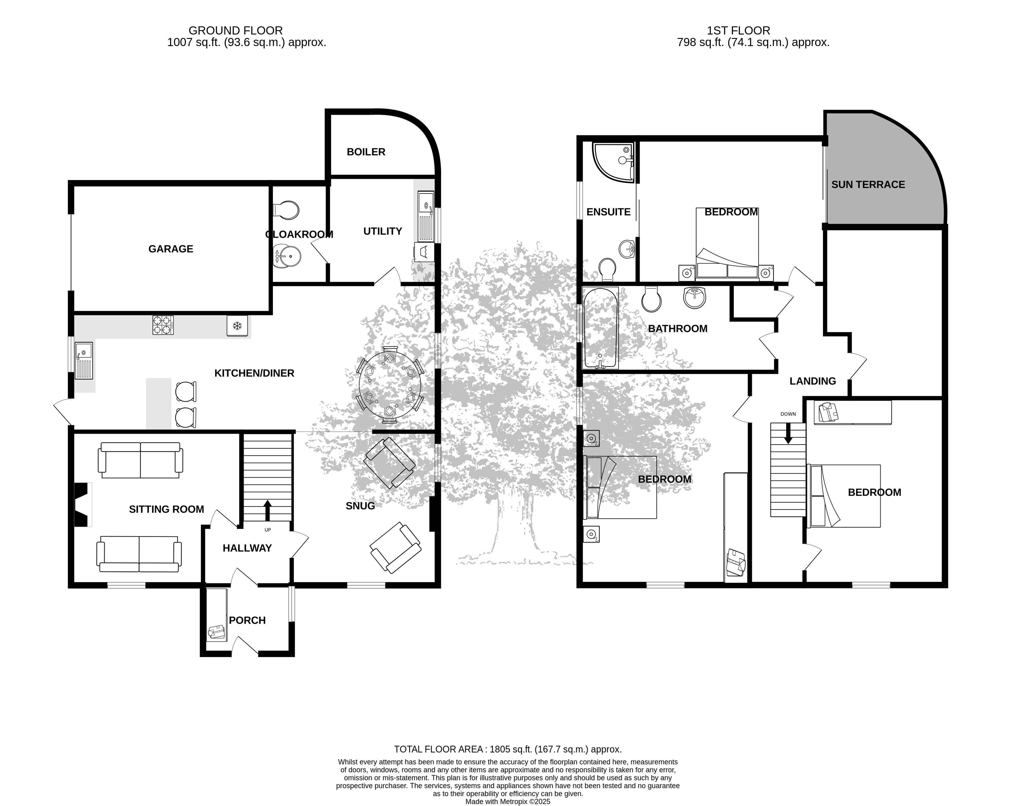
Living
Three good sized reception spaces on the ground floor. A separate lounge with open fire place on one side of the stairs, the other leads through the snug that features a wood burner, to the kitchen and dining space.

Sleeping
On the first floor off the landing are 4 double bedrooms and the newly fitted modern house bathroom. The primary bedroom benefits from a newly fitted modern shower room and fantastic views across the bay. There is also good loft storage that is boarded, access from 2 hatches.

Services
All mains services. Electric flow boiler for central heating. Gas hob in the kitchen, serviced regularly. Electric underfloor heating in the kitchen and upstairs bathrooms. Fully double glazed. Electric roller door to garage. Planning approval still live for 2 storey extension, providing more living space and a study.

Garden
Generous patio and lawn area at the front of the house, completely private and enclosed.

Parking - Driveway

KEY FEATURES
  • Beautiful four bedroom family home
  • Stunning views from the primary bedroom and South facing balcony across St Aubins Bay
  • Garage for storage and 3 parking spaces on the driveway
  • Fully enclosed West facing garden with lawn and patio spaces
  • Three versitile reception spaces
  • New block work driveway
  • On a quiet residential road in a sought after position
  • Close to the 15 bus route and other local amenities
  • Sole agent
  • Call James on 07829835076 or james@broadlandsjersey.com
Documents Floorplan Brochure
Viewing
Please contact us on 01534 880 770 if you wish to arrange a viewing appointment for this property, or require further information.
Disclaimer
Broadlands endeavour to maintain accurate depictions of properties in Virtual Tours, Floor Plans and descriptions, however, these are intended only as a guide and purchasers must satisfy themselves by personal inspection.
4459Northdale
Interested? Let’s talk

James Cumming

Residential & Commercial Negotiator

Request a valuation

Learn what your home is worth

Start the selling process with an honest valuation.
The first step to selling is an accurate assessment of your home’s value.

Please fill out and return this form, and we will be in touch within one working day with a knowledgeable and honest valuation. We will also include our recommendations for your next steps in the selling process and how we can guide you so you can move forward with knowledge and confidence.

By submitting this form, you agree that we may contact you using the details you have provided.

Register your Interest

For more details & the required auction pack, contact us.

By submitting this form, you agree that we may contact you using the details you have provided.