The Stable House at Palm Grove is a striking example of Jersey's rural architectural heritage, tucked away in a hidden hollow just five minutes from town.
The Stable House build in the 1970's. The property has been thoughtfully upgraded by the current owner, with stylish new interiors-including a new kitchen and windows, rewired electrics, and renovated bedrooms-while still offering scope for personalisation.
Full of charm and character, The Stable House overlooks a lovely green valley, with private gardens designed to create an oasis of peace and privacy, including secret pathways, mature planting, and a balcony with sweeping views. A summerhouse in the garden to enjoy entertaining with friends for drinks and BBQ's.
Ownership and access rights are clear, parking is provided for two to three vehicles, and the property enjoys direct access to protected National Trust land below. Combining privacy, town convenience, and rare period features, The Stable House is a rare opportunity to own a piece of untouched island history while creating your own chapter within it. can you add that it has a large summerhouse in the garden, perfect for entertaining .
Living
The living space at The Stable House blends historic charm with modern updates, with a lovely sitting room with wood burning stove, also featuring renovated bedrooms, a new kitchen, and stylish interiors. The home offers character-filled, comfortable rooms with period details and peaceful views over private gardens and a green valley.
Sleeping
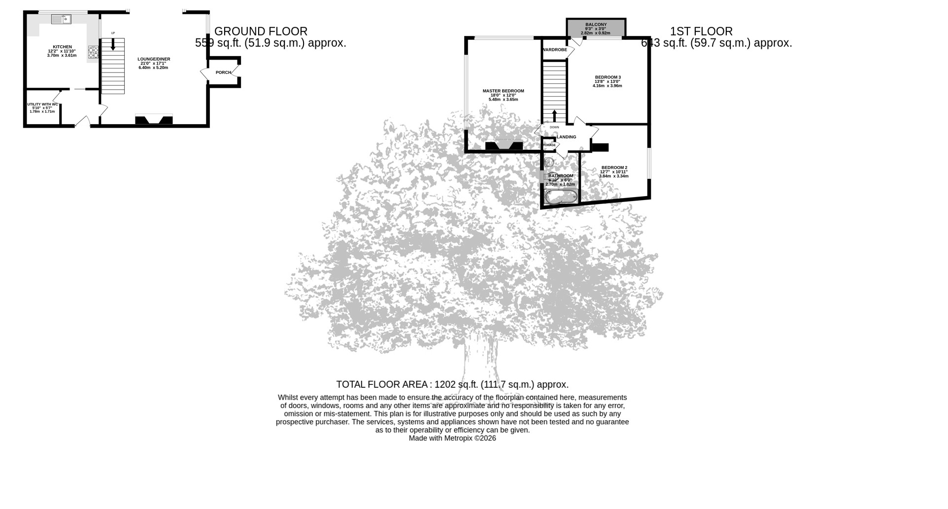
The sleeping accommodation at The Stable House includes three good-sized double bedrooms on the first floor, served by a house bathroom. Include plumbing provision for an en-suite in the master bedroom.
Services
Drains - Tuke and Bell septic tank located at the rear of the property Soak away located next to the Tuke and Bell. Water - Borehole located at rear of the property on the national trust land approximately 100m away. Main located at the top of the drive on the parallel road with rights to come down the road. Heating - Electric Heaters Underfloor heating in the bathroom.
Parking
3 parking spaces at the front of the property. Road is private for the residents in the area.
Garden
Multiple tier gardens and seating areas as well as summer house/bar.
Parking - Driveway
The Stable House provides private parking for two to three vehicles, ensuring convenient and secure access for residents and guests.