Chat with us, powered by LiveChat
Sole Agent

Terre Neuve

£2,450,000
Ref 488834
St. John
Freehold
7 bedrooms
3 bathrooms
6 receptions
Garage
KEY FEATURES
  • Large detached traditional home
  • Incredible kitchen in converted barn with mezzanine level
  • 5 bedroom main house, 2 bedroom cottage
  • Plenty of reception rooms
  • Sunny, south facing, enclosed garden
  • Convenient location close to St John's village
  • Ample parking and garage
  • Sole Agent
  • Call Harry 0779 751557 or Harry@broadlandsjersey.com
An expansive 7-bedroom detached house that boasts a unique blend of charm and modern comfort.

The property is a large, traditional home that offers the best of both worlds. The highlight is the incredible kitchen situated in a converted barn with a mezzanine level, it acts as a fantastic focal point of the home.

Comprising a 5-bedroom main house and a separate 2-bedroom cottage, there's plenty of space for the whole family. Multiple reception rooms provide ample space for relaxation and entertainment. With a sunny, south-facing enclosed garden, it is safe for children and pets.

Conveniently located near St John's village, this property offers easy access to local amenities. With ample parking and a garage, this home is ready to accommodate your every need. Don't miss this opportunity to make this spacious and inviting property your own.


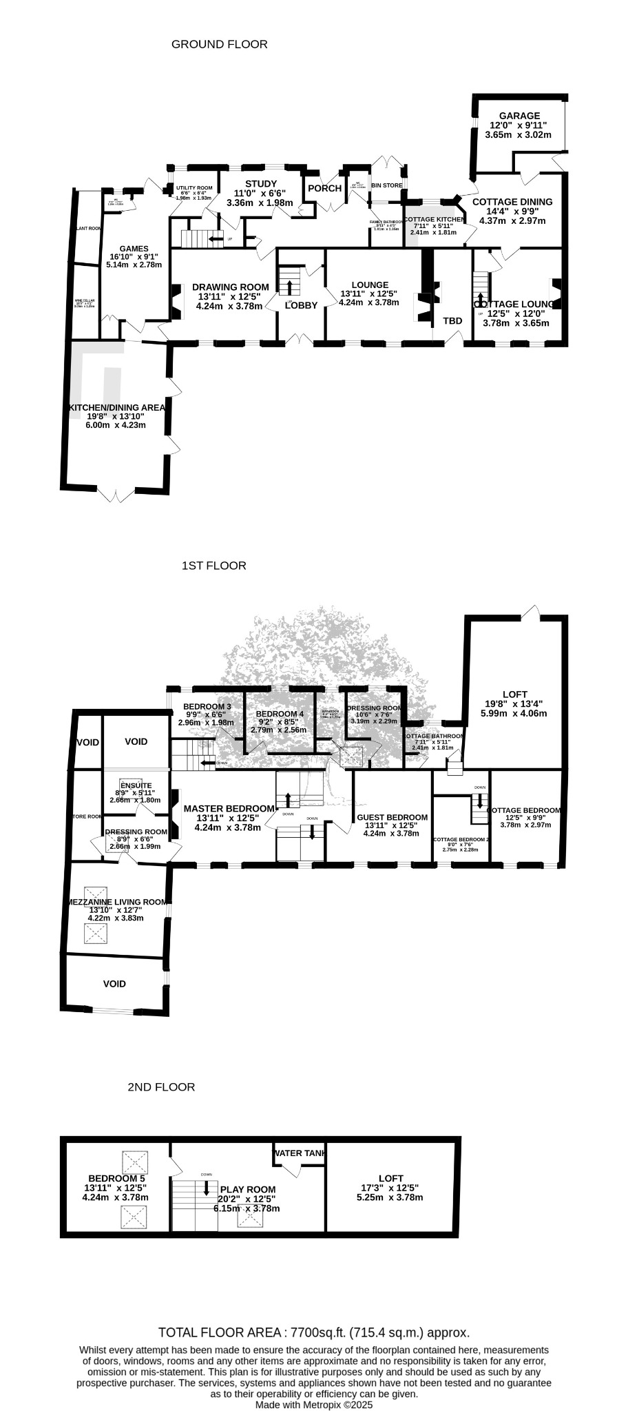
Living
There is plenty of living pace in this home, the standout room is the incredible kitchen / diner with a large mezzanine lounge above, vaulted ceilings and access to the garden. Additionally there is also a games room/gym, granite wine room, dining room, study, and separate lounge. On the top floor there is a further multi-purpose room next to the attic bedroom that would make a fantastic playroom, teenage hangout, cinema etc.

Sleeping
The main house has 5 double bedrooms. The main bedroom has a large walk-in wardrobe and gorgeous en-suite bathroom. The remaining bedrooms in the main house are serviced by the two house bathrooms and there is also a further dressing room which could be a repurposed as a 6th double bedroom if required on the first floor. The top floor consists of a huge double attic bedroom with exposed 18th century beams and the connecting play room / teenage den could be used as a separate suite.

Separate Cottage
Large kitchen, separate dining room and separate living room with log burner. Small patio with access to main garden. The cottage is the perfect second generation or rental unit for the property.

Outside
The home benefits from three distinct gardens. There is a large, private, and enclosed south facing garden that receives all day sun. There is also a beautiful separate kitchen garden featuring a patio and raised beds with direct access from the kitchen via a double height glazed archway. Finally there is a large rear garden and parking area, surrounded by mature hedges which could also be a used as a building plot in the future (subject to planning approval).

Parking
The property has an intergral garage and also separate parking for up to 10 cars.

Services
Mains drains. Well water with water treatment and pressuriser in plant room. Solar panels and air source heat pump. Wet electric heating underfloor heating on both floors in the kittchen and main bedroom. Electric radiators on the rest of the house. Cottage is on separate electric heating and water cylinder. Fibre broadband installed.

Garden
Large, sunny, south facing garden that is completely enclosed and safe for children and pets.

Parking - Garage
Integral single garage
Parking - Off street
Ample parking to the rear of the property.

KEY FEATURES
  • Large detached traditional home
  • Incredible kitchen in converted barn with mezzanine level
  • 5 bedroom main house, 2 bedroom cottage
  • Plenty of reception rooms
  • Sunny, south facing, enclosed garden
  • Convenient location close to St John's village
  • Ample parking and garage
  • Sole Agent
  • Call Harry 0779 751557 or Harry@broadlandsjersey.com
Documents Floorplan Brochure
Viewing
Please contact us on 01534 880 770 if you wish to arrange a viewing appointment for this property, or require further information.
Disclaimer
Broadlands endeavour to maintain accurate depictions of properties in Virtual Tours, Floor Plans and descriptions, however, these are intended only as a guide and purchasers must satisfy themselves by personal inspection.
3601Terre Neuve
Interested? Let’s talk

Harry Trower

Director

Request a valuation

Learn what your home is worth

Start the selling process with an honest valuation.
The first step to selling is an accurate assessment of your home’s value.

Please fill out and return this form, and we will be in touch within one working day with a knowledgeable and honest valuation. We will also include our recommendations for your next steps in the selling process and how we can guide you so you can move forward with knowledge and confidence.

By submitting this form, you agree that we may contact you using the details you have provided.

Register your Interest

For more details & the required auction pack, contact us.

By submitting this form, you agree that we may contact you using the details you have provided.