Chat with us, powered by LiveChat

The Hacienda

£10,495,000
Ref 494986
St. Brelade
Freehold
5 bedrooms
5 bathrooms
5 receptions
Garage
KEY FEATURES
  • Spectacular contemporary residence
  • Elevated with sea views
  • 5 Suites plus integral flat
  • Smart technology throughout
  • Total privacy throughout
  • Cinema room, wine room and gym
  • 3 car garage
  • The finest quality available
  • Call Nigel on 07797 718233 or nigel@broadlandsjersey.com
Constructed in 2016 to the current owners exacting standards, no expense has been spared on the build. In fact the systems used, from heating and bathroom fixtures to cinema room, electric blinds, curtains etc are all of the highest quality available.

Not only that but the owners have ensured that all updates required have taken place.
The property sits at the end of a long private driveway in an elevated location overlooking surrounding fields to the sea beyond. Electric gates and a complex security system provide peace of mind if the house is to be unoccupied for long periods. There is virtually no maintenance required as the gardens have been replaced with Astroturf. All the operating systems on the house can be operated remotely and security cameras can also be monitored.

The entrance hall features a double height ceiling with a suspended staircase to the first floor. The property is glazed from top to bottom with doors leading onto terraces and the garden. A beautifully equipped kitchen diner has every appliance you could wish for and all of the top marques such as Wolf and Sub Zero. The lounge and dining room feature a central bar, perfect for entertaining.

The property can be purchased with the entire contents should one wish to have an easy turnkey option.


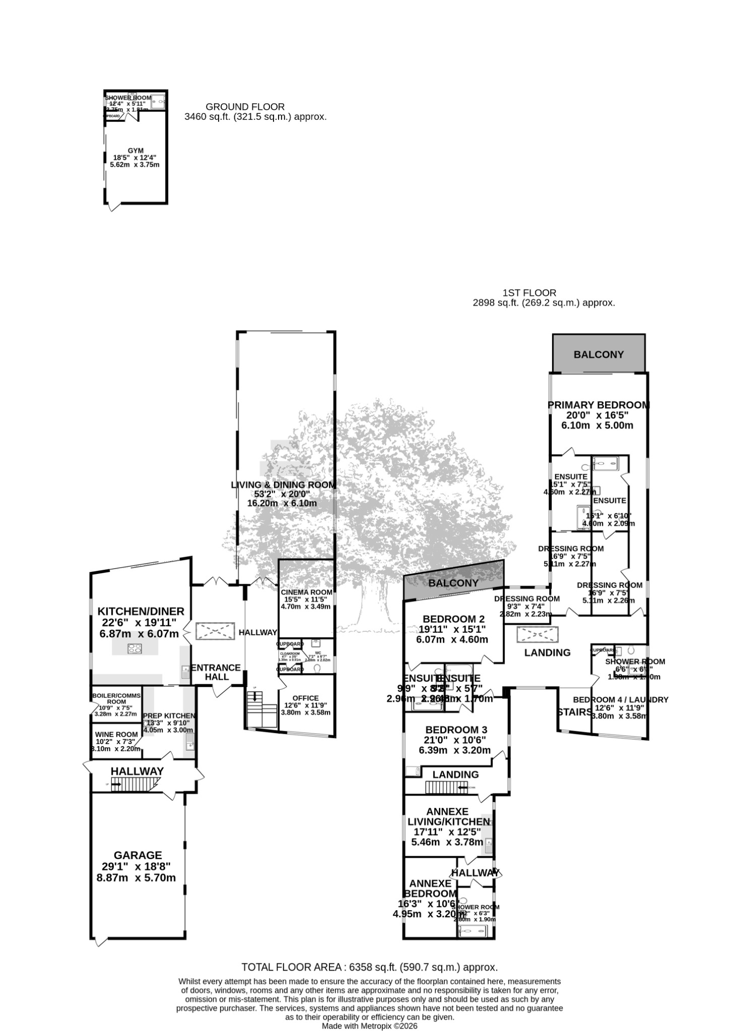
Rooms


Living
Huge living spaces. A full height galleried entrance hall. A fully equipped eat in kitchen with Wolf and Sub Zero appliances. Further prep kitchen behind with adjacent wine cellar. Off the entrance hall is an office, cloakroom, cinema room and a very spacious lounge/diner with central bar. All rooms have glazed doors onto the terraces.

Sleeping
The original design feature 5 bedroom suites plus an integral flat. The owners have adapted to create an enormous main suite with his and hers bathrooms and dressing rooms, large terrace and amazing views. Another bedroom is used as an office with a further suite fitted as a utility room. All can be easily returned to 5 bedrooms.

Services
All mains, bottled gas for fire. Remotely monitored fire alarm and house alarm. Lutron lighting, SKY multi room and Apple TV in all rooms, Savant music system throughout. Meridian system to soundproofed cinema room. Keyless entry to main door.

Garden
Good size garden with ample space for swimming pool. Gardens laid to Astroturf for low maintenance.

Parking - Garage
Triple garage with electric doors and plenty of power points.

KEY FEATURES
  • Spectacular contemporary residence
  • Elevated with sea views
  • 5 Suites plus integral flat
  • Smart technology throughout
  • Total privacy throughout
  • Cinema room, wine room and gym
  • 3 car garage
  • The finest quality available
  • Call Nigel on 07797 718233 or nigel@broadlandsjersey.com
Documents Floorplan
Viewing
Please contact us on 01534 880 770 if you wish to arrange a viewing appointment for this property, or require further information.
Disclaimer
Broadlands endeavour to maintain accurate depictions of properties in Virtual Tours, Floor Plans and descriptions, however, these are intended only as a guide and purchasers must satisfy themselves by personal inspection.
3599The Hacienda
Interested? Let’s talk

Nigel Hurst

Director

Request a valuation

Learn what your home is worth

Start the selling process with an honest valuation.
The first step to selling is an accurate assessment of your home’s value.

Please fill out and return this form, and we will be in touch within one working day with a knowledgeable and honest valuation. We will also include our recommendations for your next steps in the selling process and how we can guide you so you can move forward with knowledge and confidence.

By submitting this form, you agree that we may contact you using the details you have provided.

Register your Interest

For more details & the required auction pack, contact us.

By submitting this form, you agree that we may contact you using the details you have provided.